Studio/Ufficio
Colfosco, Susegana

Rif: I/NG098
imm mq
610.00 mq
imm locali
10 locali
imm camere
0 camere
imm bagni
2 bagni
530.000 €
Preferiti
Condividi

Studio/Uffico a Colfosco di Susegana in vendita.

Proponiamo questo fantastico immobile ad utilizzo direzionale e/o ufficio a Colfosco di Susegana in vendita
Trattasi della ex sede di "GHIAIA DI COLFOSCO".
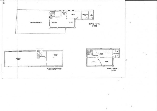
La proprietà è costituita da un'area sulla quale è eretto un fabbricato del 2007 destinato a direzionale uffici e studio.

L'edificio si sviluppa su 2 piani fuori terra e un piano interrato per un totale di 610mq.
Al piano terra è presente un ingresso che da sull'atrio principale dove è presente la reception, proseguendo si arriva alla zona destinata a uffici e numerose postazioni lavoro, infine su questo piano è presente un primo bagno con doppi servizi.

Salendo al piano primo troviamo due grandi uffici dirigenziali separati tra loro e una sala riunioni di generose dimensioni, conclude il piano un secondo bagno anche questo dotato di doppi servizi. l'intero spazio è travato a vista.

Al piano interrato troviamo una grande sala conferenze e un archivio.
Completa l'offerta una spazio esterno di proprietà destinato a parcheggi dedicati di cui 8 coperti da una tettoia.

Quest'immobile è in classe C, e gode di ottime metrature, e numerosi comfort quali:

  • Immobile in ottimo contesto e semi indipendente.
  • Metrature generose.
  • Parcheggi coperti e scoperti di proprietà.
  • Recente costruzione.
  • Efficenza energetica.
  • Sale conferenze e riunioni dedicate.
  • Ascensore che collega tutti i piani.

Per avere maggiori informazioni su questo immobile in vendita a Colfosco di Susegana potete contattarci presso l'agenzia immobiliare impREsa di Conegliano in Via Colombo 51 telefonando al n. 043823921, citando il Rif. I/NG098 oppure visitate il nostro sito www.impresaimmobiliare.com

Tour virtuale

Dettagli

Superficie (mq)610.00
Locali10
Bagni2
Classe EnergeticaC
RiscaldamentoAutonomo
Piani totali2
Stato conservazioneOttimo
Posti auto2
ArredatoParzialmente arredato
PosizionePeriferica

Hai un immobile da vendere?

Contattaci per una valutazione del tuo immobile. La nostra valutazione immobiliare ti permetterà di conoscere con certezza e senza impegno il giusto valore del tuo immobile.

ImpREsa Conegliano

Via Cristoforo Colombo, 51 - 31015, Conegliano

Contattaci per questo immobile

Immobili correlati

Abbinata/Bifamiliare a Susegana

CASA BIFAMILIARE NUOVA COSTRUZIONE CLASSE "A" PONTE DELLA PRIULA Proponiamo in vendita villa bifamiliare in fase di cost...

Villetta schiera a Susegana

Villetta a schiera di testa di nuova costruzione, con tre camere e giardino privato, a Ponte della Priula.In vendita a P...

Appartamento a Susegana

ESCLUSIVA IMMOBILIARE = ACQUISTO IN SICUREZZAAppartamento due camere con giardino in vendita a Ponte della Priula.Questo...